Here is a list of currently available properties. Please contact us for information about how Fred Motz Builder, Inc. can help you find the perfect location to build your new home in Mid-Michigan and beyond.

St. Johns - Fieldstone Village Condos / Duplex Community
Welcome to our newest development Located in St. Johns Michigan which is conveniently located off Old US-27 south side of town and is only a short drive to Dewitt & Lansing and surround communities. This new development features the benefits of suburban living such as underground electric, natural gas, and public water/sewer, while benefiting from a country location and close to many walking, biking, and shopping areas. We have two floor plans available, the Lilly & The Clair each have their own character and spin on condo living which vary in size and prices. See the details of each below and Call Fred Motz at 517-749-8463 for more information!
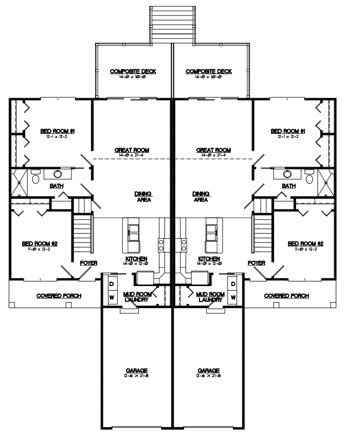
The Lilly
The Lilly is the smaller of the two duplex floor plans located in Fieldstone Village. The Lilly includes approximately 1044 Sq. Ft. of ranch / Barrier Free living space - Two Bedrooms - First Floor Laundry - 1 Bathroom - Great Room with Cathedral Ceilings - 1 Car Attached Garage - Lookout Lower Level with Egress Windows - Landscaping & Irrigation - Fred Motz Energy Efficient Qualities Throughout with R-50 Attic, R19 Wall Insulation - High Efficiency Furnace & Water Heater - Island Kitchen with Granite Countertops - Low Maintenance Composite Decking & Vinyl Railing – Low association dues which include: Lawn Care, Snow Removal, Exterior Insurance and Exterior Maintenance - Starting in the Lower $200’s - Call Fred (517) 749-8463 for more information


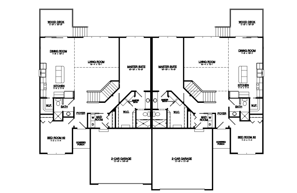
The Claire
The Claire is the Larger of the two duplexes in Fieldstone Village. The Claire includes approximately 1428 Sq. Ft. of ranch / Barrier Free living space - Two Bedrooms - First Floor Laundry - 2 Bathrooms - Great Room with Cathedral Ceilings - 2 Car Attached Garage - Lookout Lower Level with Egress Windows - Landscaping & Irrigation - Fred Motz Energy Efficient Qualities Throughout with R-50 Attic, R19 Wall Insulation - High Efficiency Furnace & Water Heater - Island Kitchen with Granite Countertops - Low Maintenance Composite Decking & Vinyl Railing – Low association dues which include: Lawn Care, Snow Removal, Exterior Insurance and Exterior Maintenance - Starting in the Upper $200’s - Call Fred (517) 749-8463 for more information


